Active Listing
Under Construction

912 Salisbury Ct

Chapin, SC 29036
List Price

$835,000

sq.ft.
3387
Bed
4
Bath
4
Community
WhiteWater Landing

New construction home by the award-winning Blythe Custom Homes!

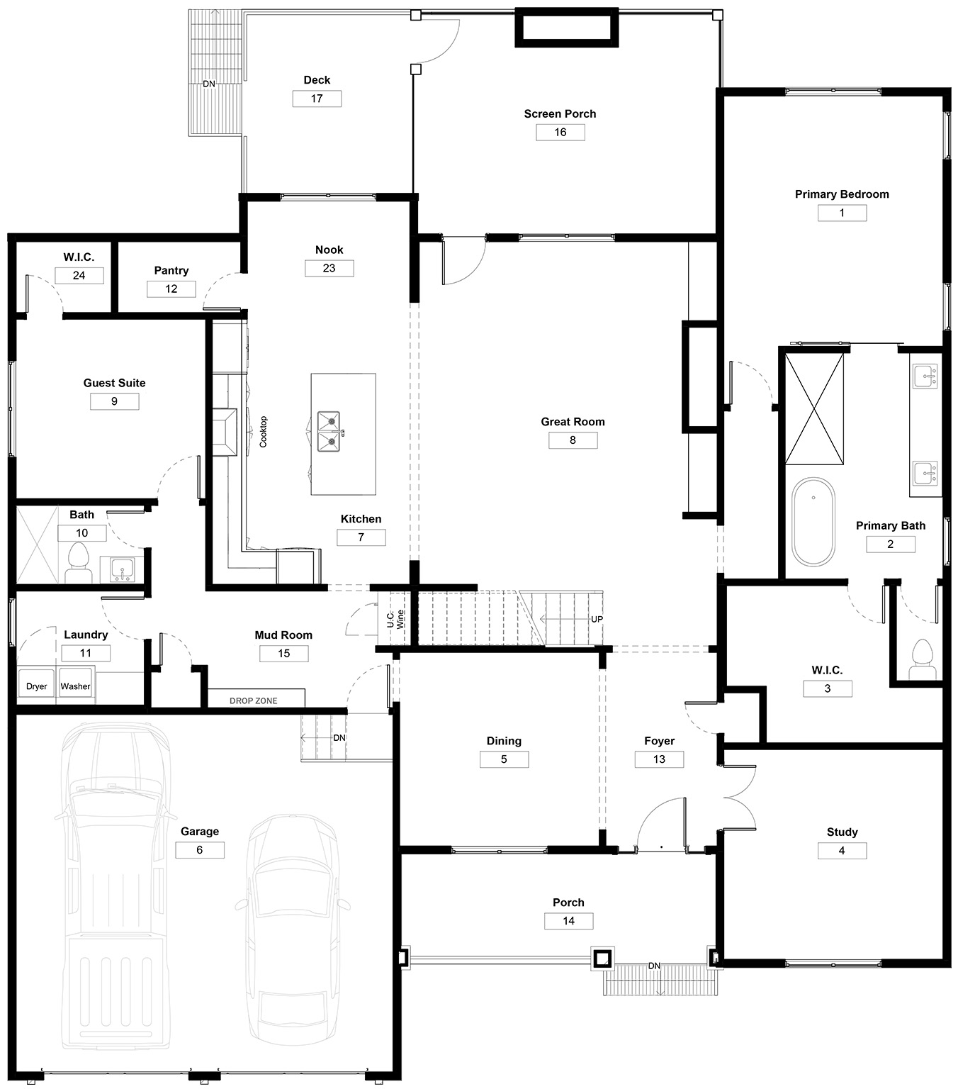
This four-bedroom craftsman boasts high ceilings and engineered hardwood floors throughout the spacious, open floor plan. The gourmet kitchen includes quartz countertops, stainless steel appliances, a large walk in pantry and island overlooking the living room featuring a beautiful gas fireplace and built ins. A formal dining room and home office/second living room are at the front of the home, offering ample room for entertaining family and guests.

The primary retreat features a spa-like bathroom with a tiled shower, separate pedestal tub and a large, walk in closet. A second bedroom with private bath is located on the other side of the home on the main floor, perfect for guests.

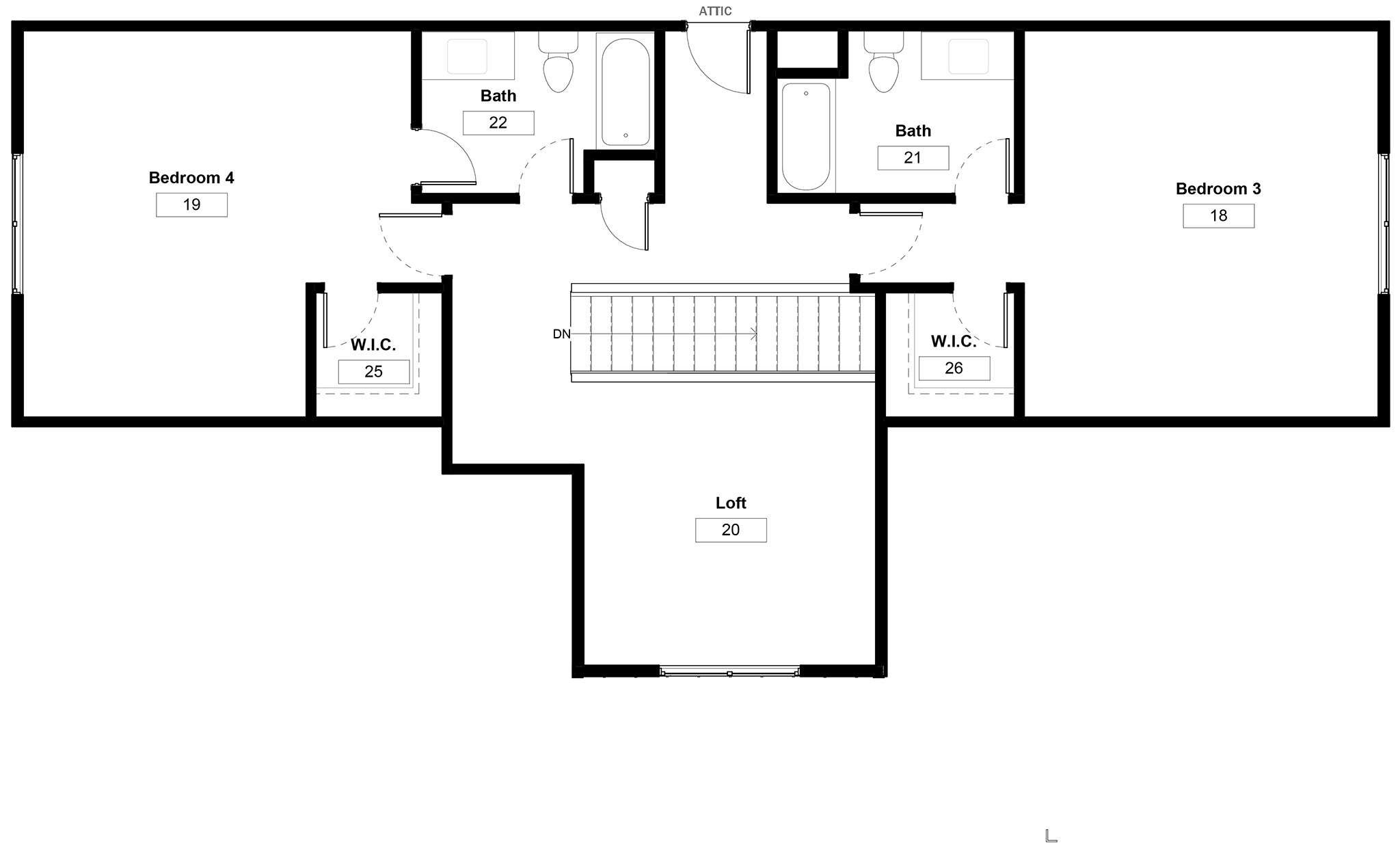
Upstairs are two additional bedrooms, each with their own bathroom and walk in closet, a loft, and a large, walk in attic storage.

This home is located in the new and highly desirable lake front community Whitewater Landing on Lake Murray, offering a community pool, clubhouse, and private boat storage.

Contact Sarah Bennett, Realtor with Better Homes and Gardens Real Estate Medley, for more information. 803-302-4306.

Other Listings

Under Construction

867 Arcadia Lakes Dr E

Columbia, SC 29206
List Price

$ Coming Soon

sq.ft.
3558
Bed
4
Bath
4.5
Plan
The Abberton
Community
Arcadia Lakes
Under Construction

820 Elms Spinney Ln

Chapin, SC 29036
List Price

$719,000

sq.ft.
2860
Bed
4
Bath
3.5
Plan
The Davidson
Community
WhiteWater Landing
Sold
Lexington SC custom home builder

234 Clayborn Dr

Lexington, SC 29072
List Price

$949,000

sq.ft.
3438
Bed
4
Bath
4.5
Plan
The Washington
Community
Golden Hills
Sold
Custom home building companies SC

573 Misty Banks Dr

Chapin, SC 29036
List Price

$855,000

sq.ft.
3410
Bed
5
Bath
4.5
Plan
The Brennan
Community
WhiteWater Landing
Move-in Ready!

908 Salisbury Ct.

Chapin, SC 29036
List Price

$819,000

sq.ft.
3332
Bed
5
Bath
4.5
Plan
Azalea
Community
Whitewater Landing

Take the first step toward your new home.